Stilvolle 3-Zi.-DG-Wohnung mit Dachterrasse & Stellplatz im Viertel Oberer Ehmschen | Rellingen
Stilvolle 3-Zi.-DG-Wohnung mit Dachterrasse & Stellplatz im Viertel Oberer Ehmschen | Rellingen
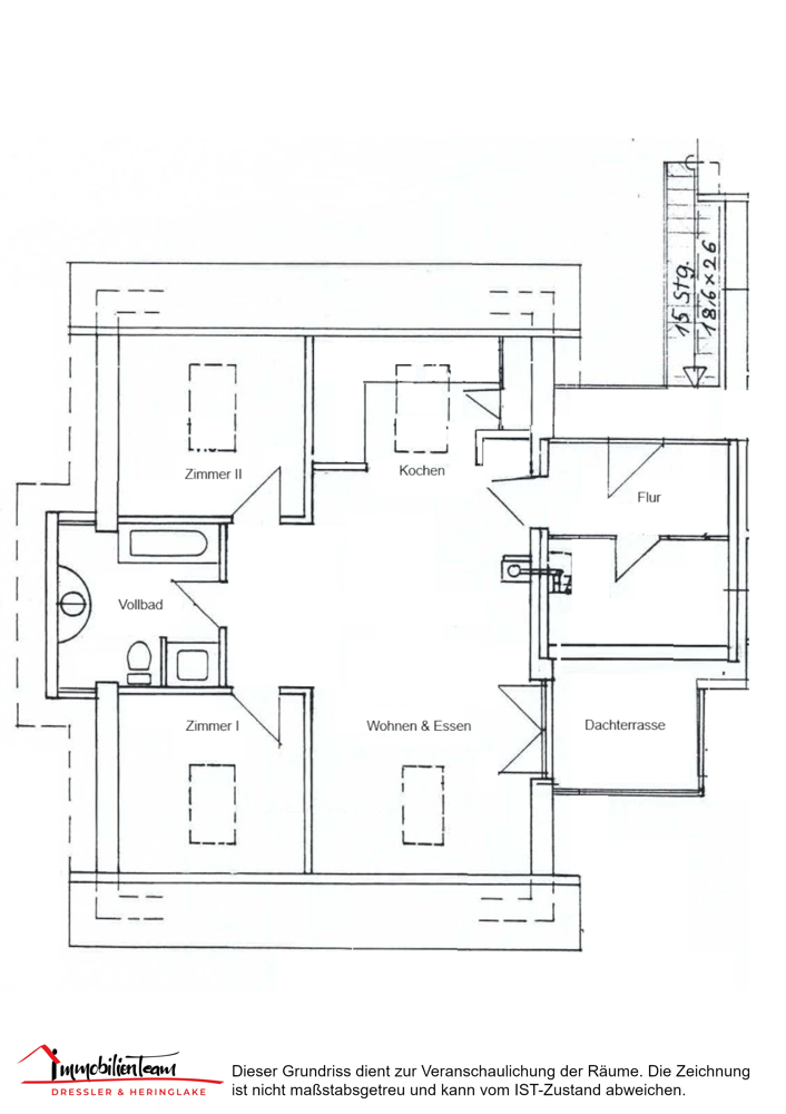
Objektbeschreibung
In einer der gefragtesten Wohnlagen von Rellingen – im idyllischen Wohnviertel „Oberer Ehmschen“ – erwartet Sie diese attraktive 3-Zimmer-Dachgeschosswohnung mit großzügiger Dachterrasse und eigenem PKW-Stellplatz. Auf ca. 73 m² Wohnfläche bietet sie ein komfortables Zuhause für Singles, Paare oder kleine Familien. Ein besonderes Highlight ist der offen gestaltete Wohn- und Essbereich mit neuem, hochwertigem Parkettboden. In Kombination mit frisch gestrichenen Wänden entsteht ein modernes und einladendes Wohnambiente. Die offene Einbauküche fügt sich harmonisch in den Raum ein und unterstreicht das großzügige Wohngefühl. Sie bietet ausreichend Platz zum Kochen sowie eine Anschlussmöglichkeit für eine Geschirrspülmaschine. Von hier aus gelangen Sie direkt auf die sonnige, südwestlich ausgerichtete Dachterrasse – perfekt für entspannte Stunden im Freien. Die Wohnung verfügt über zwei gut geschnittene Zimmer mit jeweils ca. 13 m², die sich flexibel als Schlaf-, Kinder- oder Arbeitszimmer nutzen lassen. Charmante Dachschrägen verleihen den Räumen eine gemütliche Atmosphäre, während große Fenster für viel Tageslicht sorgen. Das helle Vollbad ist mit Badewanne, separater Dusche sowie zwei Fenstern ausgestattet, die angenehme Lichtverhältnisse und eine optimale Belüftung gewährleisten. Zudem befindet sich hier der Stellplatz für die Waschmaschine, was zusätzlichen Komfort im Alltag bietet. Ein praktischer Abstellraum neben der Küche sorgt für weiteren Stauraum. Ergänzend steht ein Dachbodenraum zur Verfügung, der über eine Bodenluke erreichbar ist. Die Beheizung erfolgt über eine eigene Gastherme, sodass Sie Ihre Heizkosten individuell steuern können. Ein Außenstellplatz für Ihr Fahrzeug rundet dieses attraktive Mietangebot ab. Die ruhige, grüne Lage im gehobenen Wohnumfeld überzeugt durch eine hohe Lebensqualität und eine gute Anbindung an Hamburg sowie die umliegenden Gemeinden.Austattung
- neuer Parkettfußboden- moderne und offene Einbauküche
- Vollbad mit Dusche und zwei Fenstern
- Dachterrasse
- Abstellraum neben der Küche
- Dachboden
- Stellplatz für Ihren PKW
- eigene Gastherme
Lage
- ruhige Sackgassenlage- zentrale und naturnahe Wohngegend
- nur wenige Gehminuten zum Ortszentrum und zum Bahnhof Pinneberg
- gute Anbindung an die A23 über die Anschlussstelle Pinneberg-Süd
- umfassende Infrastruktur in unmittelbarer Nähe
- gehobenes Wohnumfeld
Weitere Angaben
| Ort: | Rellingen |
| Wohnfläche: | ca. 73,00 m² |
| Zimmer: | 3 |
| Baujahr: | 1996 |
| Energieausweis: | Verbrauchsausweis |
| Endenergieverbrauch: | 106,20 |
| Wesentlicher Energieträger: | Gas |
| Warmwasser enthalten: | Nein |
| Kaltmiete: | 1.100 € |
Bildergalerie
Jetzt Exposé anfordern!
Sie interessieren sich für dieses Angebot? Schreiben Sie uns gerne, wir senden Ihnen umgehend unser Exposé zu.
Alternativ können Sie uns gerne auch telefonisch erreichen: 04101 - 538 44 50












